Now Selling
Land
House and Land
Completed Homes
Display Village
Explore
Amenity
Parks
Future
Community
Lucas Locals
Employment
Downloads
History
Ballarat
Register
Now
Package Brochure
Lucas Project Brochure
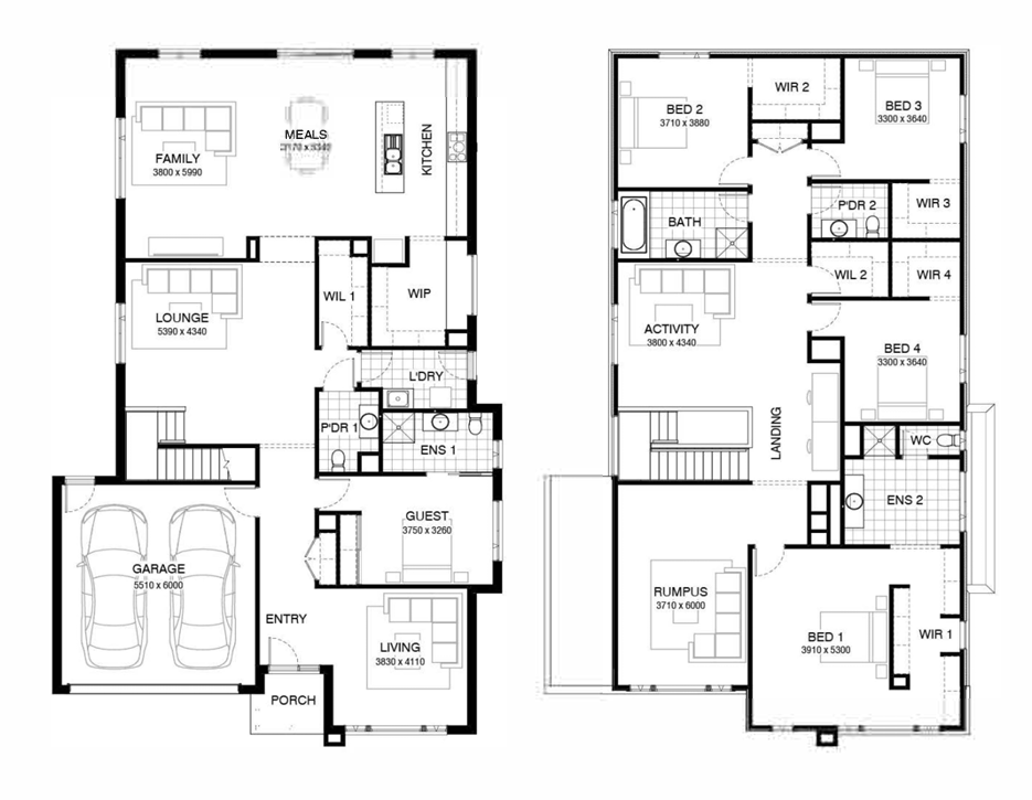
Lot 1903
House and Land
Cordova 45
5
4
2
44.52sq
$940,460
Precinct:
Lucas Platinum
Stage:
M3
Land details
Land Size
544m²
Frontage
16m
Orientation
North
Enquire Now
Back
Nearby Amenity
show lot
Education
Health
Convenience
Parks
Wetlands
Sienna Catholic Primary School
920m
Journey Lucas Rise
1km
Journey Lucas
1.1km
Lucas Primary School
1.1km
Future Loreto Campus
1.8km
Distance is a straight line calculation.
Lucas Community Hub
880m
Ballarat Community Health
910m
UFS Medical Centre
910m
Own Your Game Fitness
950m
Ballarat Family Dental
1.1km
Distance is a straight line calculation.
EG Fuel
830m
Lucas LPO
850m
Coltman Plaza
990m
Distance is a straight line calculation.
Lucas Platinum Park
510m
Lucas Central Park
820m
Lucas Central Reserve
870m
Lucas Rise Park
1km
Lucas Dawn Park
1.4km
Lucas Sanctuary Park
1.4km
Distance is a straight line calculation.
Lucas Platinum Wetlands
190m
Lucas Rise Wetlands
630m
Lucas Central Park
820m
Lucas Landing Wetlands
1.1km
Lucas Sanctuary Park
1.4km
Lucas Sanctuary Wetlands
1.8km
Distance is a straight line calculation.
Cool Number
0
min walk
Every home at Lucas is a short walk to shops, schools and parks.
Register your interest
Close